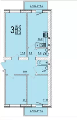
Продается 3-х комн. новостройка, 68.3 кв.м., 2/5 эт
| Стоимость | 6 600 000 |
|---|---|
| Год постройки | 2024 |
| Площадь, кв.м. | 68.3 |
| Жилая площадь | 39.2 |
| Площадь кухни, кв.м. | 13 |
| Этаж | 2 |
| Этажность | 5 |
| Комнат в квартире | 3 |
| Ремонт | Евро |
| Материал стен | Монолитный |
| Тип сделки новостройки | первичная продажа |
| Статус Недвижимости Авито | Квартира |
| Тип парковки | Парковочное место |
| Возможность ипотеки | Есть |
| Вид из окна | во двор и на улицу |
| Способ продажи дополнительно | Можно в ипотеку |
| Способ связи avito | По телефону |
| Дополнительно - avito | Балкон, Лоджия |
| Способ продажи - avito | Договор долевого участия |
| Населенный пункт | поселок городского типа Яблоновский |
|---|---|
| Улица | улица Тургеневское шоссе |
| Номер дома | 33/5к41 |
Есть возможность приобрести квартиру под семейную ипотеку, семье с двумя детьми или с одним ребенком младше 7 лет ! Дом сдан ! Жилой комплекс расположен в перспективном динамично развивающемся районе в непосредственной близости к центру города .Все самые необходимые объекты инфраструктуры, находится в шаговой доступности. Можно быстро добраться в нужный пункт в любом направлении: всего за 15 минут по Тургеневскому мосту - до делового центра Краснодара на улицу Северную, через Яблоновский мост – в его исторический и культурный центр ,к Городскому парку. Также возможно быстро выехать в направлении Черноморского побережья – до ближайшего морского курорта всего 2 часа езды на автомобиле. Малоэтажные дома. Уютные зеленые дворы со скамейками располагают к приятному отдыху и общению в лучших традициях добрососедства. А игровые и спортивные площадки сделают детство маленьких жильцов по-настоящему интересным. Звоните с удовольствием отвечу на все ваши вопросы . Анна





















