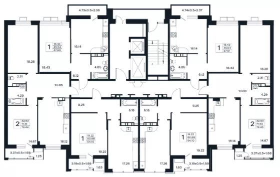
Продается 2-х комн. новостройка, 74.46 кв.м., 9/12 эт
Обзор№ - 29882
| Стоимость | 16 496 241 |
|---|---|
| Площадь, кв.м. | 74.46 |
| Жилая площадь | 32.94 |
| Площадь кухни, кв.м. | 17.34 |
| Этаж | 9 |
| Этажность | 12 |
| Комнат в квартире | 2 |
| Ремонт | Без отделки |
| Материал стен | Монолитный |
| Тип сделки новостройки | первичная продажа |
| Статус Недвижимости Авито | Квартира |
| Тип парковки | Наземная многоуровневая |
| Возможность ипотеки | Есть |
| Вид из окна | во двор и на улицу |
| Способ продажи дополнительно | Можно в ипотеку |
| Способ связи avito | По телефону |
| Способ продажи - avito | Договор долевого участия |
Адрес
| Населенный пункт | Краснодар |
|---|---|
| Район города | ЖК Эндемик |
| Улица | улица Шоссе Нефтяников |
| Номер дома | 26 |
В избранное 2 к.кв
Семейная ипотека с одним ребенком до 7 лет !!!
Наличный, безналичный расчет, IT- ипотека !!!
Дом бизнес-класса. Престижная локация в центральной части Краснодара. В непосредственной близости к главной улице города и культовой локации – легендарной «Авроре».Имеет прямой выезд к основным транспортным артериям: улицам Дзержинского, Тургенева и Ростовскому шоссе..
- Закрытая территория,
- Дом состоит из 4 подъездов 10-12 этажей,
- Доступ в подъезды по системе FАСЕ ID,
- Авторский дизайн входных групп,
- Стильные холлы, витражные подъезды,
- Круглосуточное видеонаблюдение,
- Администратор и консьерж-сервис,
- Детские зоны и спортплощадки,
- Озеленение «4 сезона», всегда зелёный двор,
- Многоуровневый и гостевой паркинг,
- Видовые квартиры с большими окнами.
Необходимые товары и услуги на нулевых этажах, не выходя из комплекса можно приобрести всё необходимое.
В шаговой доступности центр города, магазины, остановки общественного транспорта. Возможность добраться в любую точку Краснодара!
Онлайн показ в любое время!
Звоните, Виктория!
Агентства просьба не беспокоить!



























































