Продается 2-х комн. новостройка, 72 кв.м., 8/12 эт
Обзор№ - 30210
| Стоимость | 15 223 000 |
|---|---|
| Стадия строительства | дом построен, но не сдан |
| Год постройки | 2026 |
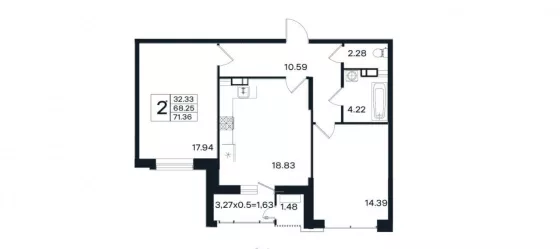
| Площадь, кв.м. | 72 |
| Жилая площадь | 50 |
| Площадь кухни, кв.м. | 20 |
| Этаж | 8 |
| Этажность | 12 |
| Комнат в квартире | 2 |
| Ремонт | Предчистовая |
| Материал стен | Монолитный |
| Тип сделки новостройки | первичная продажа |
| Статус Недвижимости Авито | Квартира |
| Право собственности | Застройщик |
| Тип парковки | За шлагбаумом во дворе |
| Возможность ипотеки | Есть |
| Вид из окна | во двор и на улицу |
| Способ продажи дополнительно | Можно в ипотеку |
| Способ связи avito | По телефону |
| Дополнительно - avito | Лоджия, Гардеробная, Панорамные окна |
Адрес
| Населенный пункт | Краснодар |
|---|---|
| Район города | ЖК Эндемик |
| Улица | улица Шоссе Нефтяников |
| Номер дома | 26 |
В избранное продается 2-х квартира
Квартира от застройщика по акции
- Дом бизнес-класс
-Рассрочка
-Самый центр города
- Закрытая территория
-Семейная ипотек 6%
-Торговые и фитнес-центры
-Круглосуточное охрана 24/7
-Современная планировка с большими кухнями
-2 детских сада и 3 гимназии
-На территории дома парковка в 3 этажа
-5 минутах от дома ул. Красная
-До парка Галицкого 10-15 минут
-В шаговой доступности бульвары и парки
-Звоните, звонок Бесплатный





















