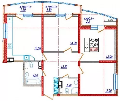
Продается 3-х комн. квартира, 83.8 кв.м., 17/24 эт

Обзор
Стоимость
7 540 000
РемонтТребуется ремонт
БалконБалкон + лоджия
Доля в квартиреНет
Онлайн показмогу провести
Статус Недвижимости АвитоКвартира
Комнат в квартире3
Площадь, кв.м.83.8
Жилая площадь40
Площадь кухни, кв.м.18
Этаж17
Этажность24
Материал стенМонолитный
Адрес
Населенный пунктКраснодар
Район городаПрикубанский
Улицаулица Петра Метальникова
Номер дома40
В избранное Продается квартира

Продается шикарная 3-х комнатная квартира в сданном доме по ул. Петра Метальникова. Красивый современный микрорайон. Шикарный вид из квартиры. В нем есть все, что нужно для жизни: дет. сады, бульвар, магазины, кафе, рестораны, спортивные комплексы. Квартира в качественной предчистовой отделке комфорт класса + ( консьерж сервиз, умный дом, красивая придомовая территория. Отличная транспортная развязка. Ведется строительство трамвайной ветки, что увеличит стоимость недвижимости в этом районе.

Цена ниже чем у застройщика!!!

Полное, качественное юридическое сопровождение. Открытие ипотеки под. Открытие ипотеки без п/в

Расположение

Важно! На карте не всегда указано точное местоположение. Более точную информацию можно узнать у менеджера, разместившего объект