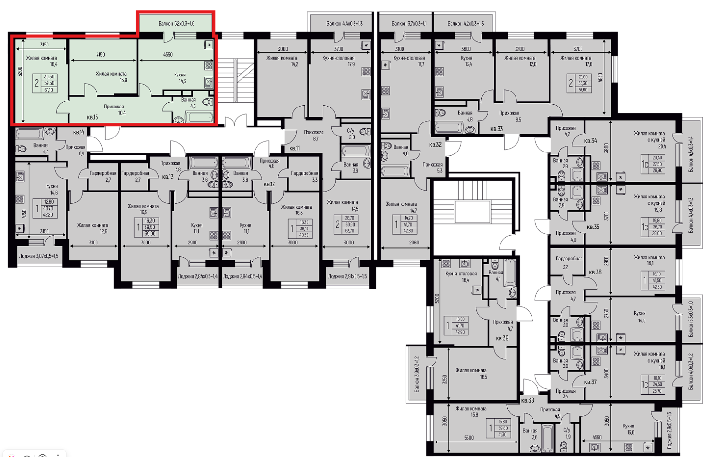
Продается 2-х комн. новостройка, 61.1 кв.м., 3/3 эт
| Стоимость | 7 320 000 |
|---|---|
| Площадь, кв.м. | 61.1 |
| Жилая площадь | 30.3 |
| Площадь кухни, кв.м. | 14.3 |
| Этаж | 3 |
| Этажность | 3 |
| Комнат в квартире | 2 |
| Ремонт | Предчистовая |
| Материал стен | Монолитный |
| Тип сделки новостройки | первичная продажа |
| Тип парковки | На улице |
| Возможность ипотеки | Есть |
| Вид из окна | на улицу |
| Способ продажи дополнительно | Можно в ипотеку |
| Способ связи avito | По телефону |
| Дополнительно - avito | Балкон, Панорамные окна |
| Способ продажи - avito | Договор долевого участия |
| Населенный пункт | посёлок Берёзовый |
|---|---|
| Район города | жилой комплекс Нова Вита |
| Улица | улица имени А.Н. Лодыгина |
| Номер дома | 6к2/1 |
Продаётся двухкомнатная квартира с большой кухней- гостиной!
Балкон с витражным остеклением!
Семейная ипотека с одним ребенком до 7 лет, материнский капитал, военная ипотека, наличный/ безналичный расчет!
Изящные трехэтажные дома, просторные дворы, утопающие в зелени и цветах, развитая инфраструктура и транспортная доступность- это новый стандарт комфорт- класса!
Экологически чистое место. Район тихий и спокойный.
Дизайнерские холлы, круглосуточное видеонаблюдение, домофоны с Face ID и мобильным приложением, автоматизация передачи показаний счетчиков(водоснабжения, электроэнергии, отопления).
Контроль доступа на территорию комплекса, парковки за домами.
В шаговой доступности остановка общественного транспорта, школы, детские сады, поликлиника, большой парк для прогулок, магазины, аптеки, пункты выдачи Озон и ВБ.
На территории множество детских площадок, футбольное поле, боксёрский ринг!
15 минут езды на машине Баскет- Холл, Исторический парк Россия- Моя история, Красная Площадь.
Удобный выезд в сторону моря!
Квартиру можно приобрести с ремонтом от застройщика!
Онлайн/ оффлайн показ в любое время! Звоните. Виктория.





















































