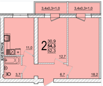
Продается 2-х комн. новостройка, 54.3 кв.м., 4/5 эт
6 840 000
Обзор№ - 26411
| Стоимость | 6 840 000 |
|---|---|
| Площадь, кв.м. | 54.3 |
| Жилая площадь | 30.9 |
| Площадь кухни, кв.м. | 11 |
| Этаж | 4 |
| Этажность | 5 |
| Комнат в квартире | 2 |
| Ремонт | Предчистовая |
| Материал стен | Монолитный |
| Тип сделки новостройки | первичная продажа |
| Статус Недвижимости Авито | Квартира |
| Тип парковки | На улице |
| Возможность ипотеки | Есть |
| Вид из окна | во двор |
| Способ продажи дополнительно | Можно в ипотеку |
| Способ связи avito | По телефону |
| Дополнительно - avito | Балкон |
| Способ продажи - avito | Договор долевого участия |
Адрес
| Населенный пункт | аул Новая Адыгея |
|---|---|
| Район города | жилой комплекс Дарград |
| Улица | улица Тургеневское шоссе |
| Номер дома | 33/2к26 |
В избранное 2 к.кв
Семейная ИПОТЕКА с 1 ребенком до 7 лет!
Семейная ипотека с двумя детьми старше 7 лет!
Жилищные сертификаты, Военная ипотека, IT- ипотека, Материнский капитал!
Жилой комплекс расположен в перспективном, динамично развивающемся районе в непосредственной близости к центру города Краснодар.
Комплекс находится в удобном местоположении, все самые необходимые объекты инфраструктуры находятся в шаговой доступности.
3 мин. до Детского сада,
5 мин. до Школы,
Магазины: Пятёрочка, Ашан, Леруа Мерлен, Мясной у дома.
7 мин. до ТЦ «Мега-Адыгея»,
Торговые центры: "Усадьба", "ArtHouse", "Унидом", "Метро".
3 мин. до Аквапарка.
Аптеки: " Радуга", "Апрель".
Поликлиника.
Остановка общественного транспорта находится в шаговой доступности!
Просторные дворы, скрытые от шума и пыли.









































