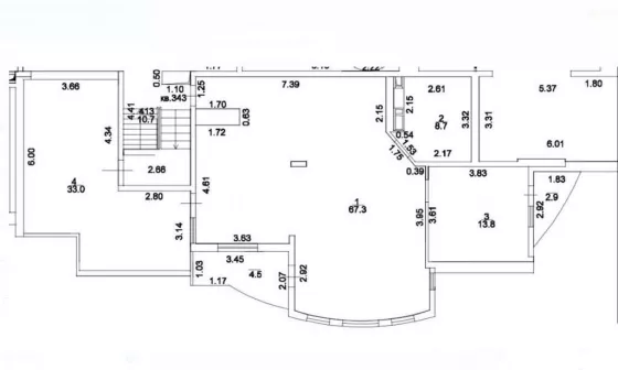
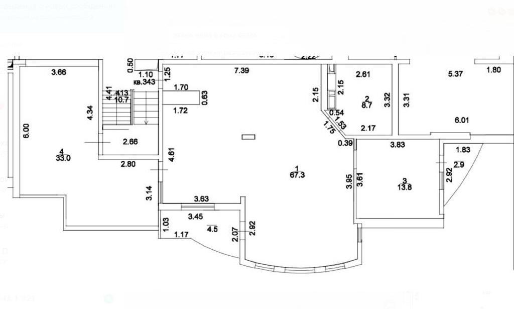
Продается 4-х комн. новостройка, 200 кв.м., 20/21 эт
19 800 000
Обзор№ - 3351
| Стоимость | 19 800 000 |
|---|---|
| Год постройки | 2021 |
| Площадь, кв.м. | 200 |
| Жилая площадь | 140 |
| Площадь кухни, кв.м. | 40 |
| Этаж | 20 |
| Этажность | 21 |
| Комнат в квартире | 4 |
| Ремонт | Требуется ремонт |
| Материал стен | Монолитный |
Адрес
| Населенный пункт | Краснодар |
|---|---|
| Улица | улица Черниговская |
| Номер дома | 1 |
В избранное Двухуровневый пентхаус
Двухуровневый пентхаус в доме бизнес-класс. Дом расположен в центральном районе на берегу реки с собственной набережной. Красивые дизайнерские входные групп, скоростные, панорамные лифты, закрытая территория с видео наблюдением, подземный и наземный паркинг, своя водяная скважина с Артезианской водой, своя котельная, система умный дом. Три лоджии и большая терраса, шикарный вид на стадион "Краснодар" и город. Отличная планировка, панорамное остекление. По всем вопросам звоните. Анна





















