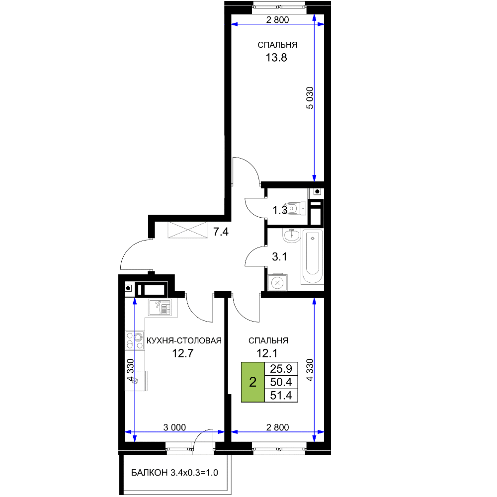
Продается 2-х комн. новостройка, 51.4 кв.м., 9/16 эт
6 164 800
Обзор№ - 11479
| Стоимость | 6 164 800 |
|---|---|
| Стадия строительства | сдан в эксплуатацию |
| Год постройки | 2023 |
| Площадь, кв.м. | 51.4 |
| Жилая площадь | 25.9 |
| Площадь кухни, кв.м. | 13 |
| Этаж | 9 |
| Этажность | 16 |
| Комнат в квартире | 2 |
| Ремонт | Eвроремонт |
| Материал стен | Монолитный |
| Тип сделки новостройки | первичная продажа |
| Тип продажи Циан | Договор уступки права требования |
| Возможность ипотеки | Есть |
Адрес
| Населенный пункт | Краснодар |
|---|---|
| Район города | жилой комплекс Ракурс |
| Улица | улица имени Героя Ростовского |
| Номер дома | 8к6 |
В избранное двухкомнатная квартира
Продается прекрасная двухкомнатная квартира улучшенной планировки, в новом современном жилом комплексе.
Квартира с ремонтом!!!
Подходит любая форма оплаты. Ипотека семейная, гос.поддержка.
Можно без первоначального взноса!!!
Широкие дворы, детские и спортивные площадки, множество коммерческих помещений.
На территории комплекса организована безбарьерная среда.
Район с развитой инфраструктурой!
В 10 минутах ТЦ Красная площадь, парк 300 летия победы, Баскет холл, Ледовый дворец.
Открою ипотеку по двум документам.
Цена указана с учетом акционных скидок!
По всем вопросам звоните, Александр























