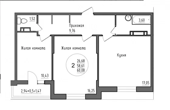
Продается 3-х комн. новостройка, 61 кв.м., 5/16 эт

6 753 000
Стадия строительствадом построен, но не сдан
Год постройки2026
Площадь, кв.м.61
Жилая площадь40
Площадь кухни, кв.м.20
Этаж5
Этажность16
Комнат в квартире3
РемонтЕвро
Материал стенМонолитный
Тип сделки новостройкипервичная продажа
Статус Недвижимости АвитоКвартира
Право собственностиЗастройщик
Тип парковкиЗа шлагбаумом во дворе
Возможность ипотекиЕсть
Вид из окнаво двор и на улицу
Способ продажи дополнительноМожно в ипотеку
Способ связи avitoПо телефону
Дополнительно - avitoЛоджия, Гардеробная, Панорамные окна
Способ продажи - avitoДоговор долевого участия
  • КВАРТИРА ПО АКЦИИ ОТ ЗАСТРОЙЩИКА 
  • ИПОТЕКА ПОД  5.5%
  • Дом комфорт класса
  • 2 школы, с открытым бассейном на 25 метров
  • 6 садиков
  • 2 поликлиники взрослая и детская 
  • В жилом районе первый тематический пешеходный бульвар «Круг семьи» 1,5 км, первая «Аллея» чемпионов, собственный сквер.
  • Всего 4 квартиры на этаже 
  • В комплексе все сетевые магазины
  • Двор без машин, подземная парковка с квартиры сразу на парковку.
  • Новая дорогая в центральную часть города 
  • Так же квартиру можно взять по ТРАНШЕВОЙ ИПОТЕКИ за 1 рубль в месяц
  • До Аэропорта 10 минут
  • До парка Галицкого 15 минут
     
  • Звоните, звонок Бесплатный

РасположениеКраснодар

Важно! На карте не всегда указано точное местоположение. Более точную информацию можно узнать у менеджера, разместившего объект