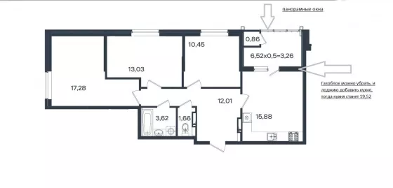
Продается 3-х комн. новостройка, 81 кв.м., 10/18 эт
Обзор№ - 26252
| Стоимость | 8 855 000 |
|---|---|
| Стадия строительства | дом построен, но не сдан |
| Год постройки | 2025 |
| Площадь, кв.м. | 81 |
| Жилая площадь | 60 |
| Площадь кухни, кв.м. | 20 |
| Этаж | 10 |
| Этажность | 18 |
| Комнат в квартире | 3 |
| Ремонт | Предчистовая |
| Материал стен | Монолитный |
| Тип сделки новостройки | первичная продажа |
| Статус Недвижимости Авито | Квартира |
| Право собственности | Застройщик |
| Тип парковки | За шлагбаумом во дворе |
| Возможность ипотеки | Есть |
| Вид из окна | во двор и на улицу |
| Способ продажи дополнительно | Можно в ипотеку |
| Способ связи avito | По телефону |
| Дополнительно - avito | Лоджия, Гардеробная, Панорамные окна |
| Есть ли право собственности | Есть |
Адрес
| Населенный пункт | Краснодар |
|---|---|
| Район города | микрорайон Образцово |
| Улица | улица Адмирала Макарова |
| Номер дома | 4 |
В избранное продается 3-х квартира
- -Квартира от застройщика по акции
- -Ипотека 6%
- -Рассрочка на 5 лет без % Банка
- -Окна смотрят на парк
- -Комплекс КОМФОРТ + класса
- -На территории комплекса 4-садика
- - Школа на 2000 детей
- - Поликлиника
- -Подземная парковка, сразу с лифта в квартиру
- -Многоуровневая парковка
- -Рядом с комплексом Торговый центр Любимово
- -Перед комплексом трамвая ветка (уже ведутся работы)
- -Площадка для выгула собак
- -Зона барбекю
- -Сухой фонтан
- -Парк на 40,000 квадратных метров , как парк Галицкого
- Звоните, звонок Бесплатный

























































