Продается 5+ новостройка, 197 кв.м., 21/21 эт
Обзор№ - 21754
| Стоимость | 26 350 000 |
|---|---|
| Стадия строительства | дом построен, но не сдан |
| Год постройки | 20244 |
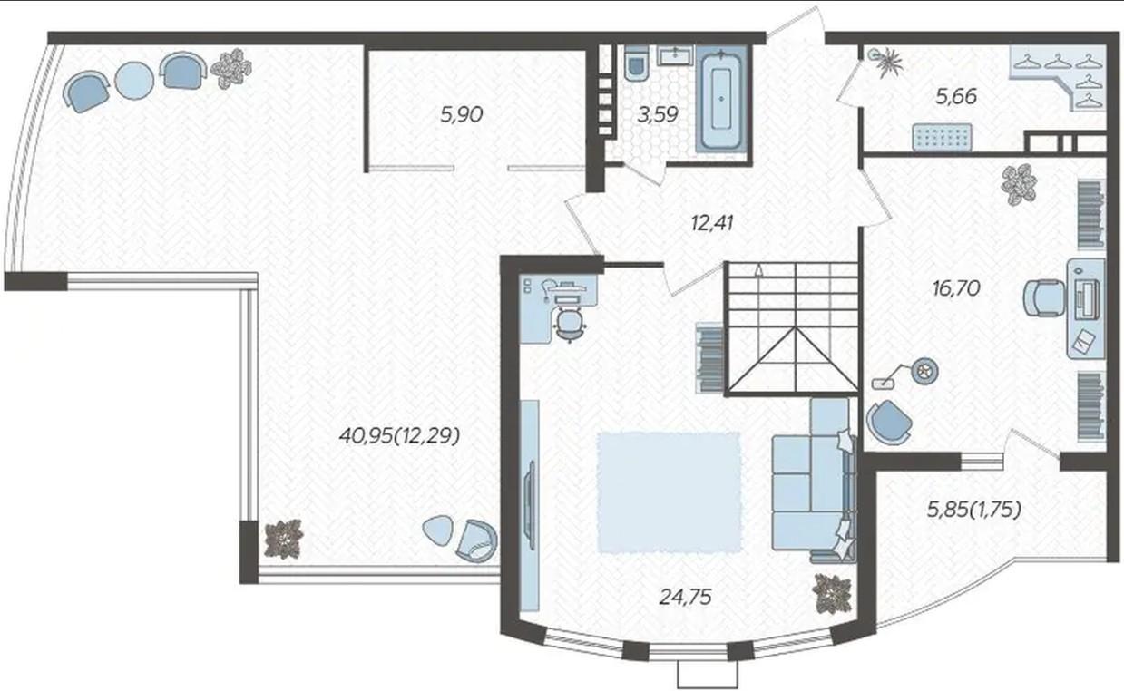
| Площадь, кв.м. | 197 |
| Жилая площадь | 170 |
| Площадь кухни, кв.м. | 25 |
| Этаж | 21 |
| Этажность | 21 |
| Комнат в квартире | 5+ |
| Ремонт | Предчистовая |
| Материал стен | Монолитный |
| Тип сделки новостройки | первичная продажа |
| Статус Недвижимости Авито | Квартира |
| Право собственности | Застройщик |
| Тип парковки | За шлагбаумом во дворе |
| Возможность ипотеки | Есть |
| Вид из окна | На солнечную сторону |
| Способ продажи дополнительно | Можно в ипотеку |
| Способ связи avito | По телефону |
| Дополнительно - avito | Лоджия, Гардеробная, Панорамные окна |
Адрес
| Населенный пункт | Краснодар |
|---|---|
| Район города | жилой комплекс Режиссёр |
| Улица | улица Уральская |
| Номер дома | 100/6 |
В избранное продается 5-х квартира
- Квартира по акции от застройщика
- Дом Комфорт + класса
- Квартира двух уровневая
Рядом с домом 3 школы , 2 детских сада, Гимназия - Поликлиника, Фитнес Клубы
- Напротив дома ТЦ СБС , Галактика, Ашан, Леруа-Мерлен
Закрытая территория
- Многоуровневый паркинг лифт спускает до парковки
Панорамное остекление
высота полков 3 метра - Есть система Trade-In, вы можете поменять свою квартиру на нашу
- Ремонт в подарок
-Способы оплаты: - -Наличный расчет
- -Ипотека
- Звоните, звонок Бесплатный











































