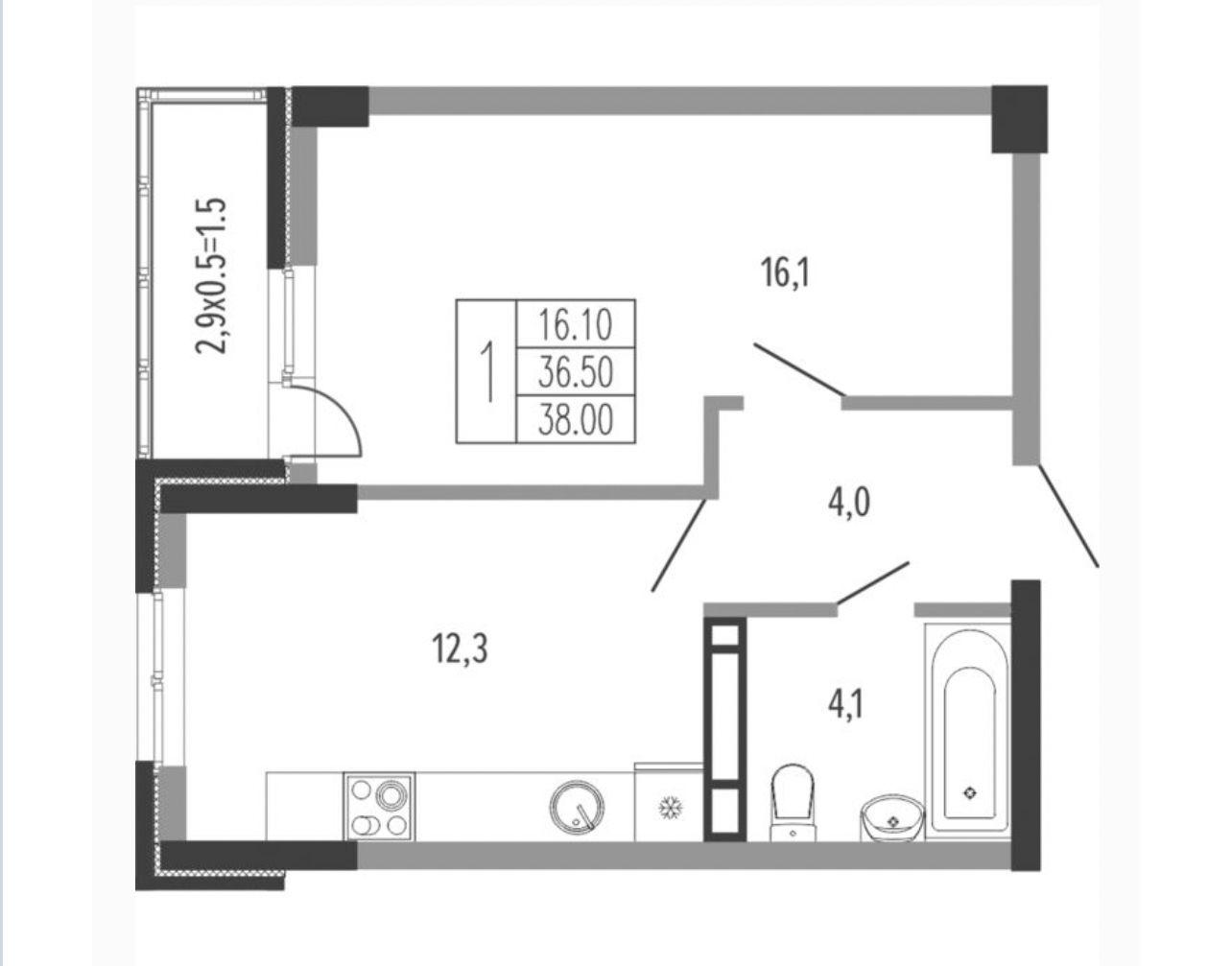
Продается однокомнатная новостройка, 38 кв.м., 9/15 эт
| Стоимость | 6 928 600 |
|---|---|
| Название ЖК | Екатерининский парк |
| Стадия строительства | строится |
| Год постройки | 2024 |
| Площадь, кв.м. | 38 |
| Жилая площадь | 16.1 |
| Площадь кухни, кв.м. | 12.3 |
| Этаж | 9 |
| Этажность | 15 |
| Комнат в квартире | 1 |
| Ремонт | Черновая отделка |
| Материал стен | Монолитный |
| Тип сделки новостройки | первичная продажа |
| Тип парковки | Наземная многоуровневая |
| Возможность ипотеки | Есть |
| Вид из окна | на улицу |
| Способ продажи дополнительно | Можно в ипотеку |
| Населенный пункт | Краснодар |
|---|---|
| Улица | улица Круговая |
| Номер дома | 4/1 |
ЖК "Екатерининский парк" Проект бизнес-класса, строящийся в Фестивальном микрорайоне Краснодара. В шаговой доступности, лучшие школы, ВУЗы, спортивные комплексы, медицинские учреждения, скверы и парки. В основе архитектурной концепции — каскадность жилой застройки. В оформлении фасада используется облицовка керамическим кирпичом и керамогранитом. На стенах предусмотрены корзины для кондиционеров. В холлах спроектированы зона ожидания, консьерж сервис и лапомойка для животных. Отдельно выделено помещение для размещения колясок и велосипедов. В каждом доме установлены дизайнерские лифты премиального класса. Двор комплекса закрыт и надежно защищен от посторонних. Присутствует как 2-х уровневая подземная, так и гостевая парковка. На территории будут созданы комфортные зоны отдыха с ландшафтным дизайном, детские игровые и спортивные площадки. СОБСТВЕННАЯ ИНФРАСТРУКТУРА Нежилые помещения располагаются на первых этажах. Учитывая, что периметр двора закрыт для посторонних, бытовые услуги и магазины, представленные на территории ЖК, служат для обеспечения потребностей жителей только данного комплекса. Именно поэтому микс арендаторов коммерческих помещений выверен и тщательно подобран. Все магазины представлены в единственном экземпляре и закрывают большинство ежедневных потребностей: - 2 детских сада на территории комплекса - коммерческая недвижимость на 1 этажах - фитнес-клуб на территории - детские площадки - спортивные корты - зона барбекю для пикников - террасы для отдыха - сквер/парк - детский центр развлечений и отдыха, Высота потолков - обеспечивает возможность размещения предприятий обществественно- деловой инфраструктуры разной специализации. Входы в уровень с тротуаром делают помещения общественного обслуживания комфортными для всех пользователей и привлекательными для арендаторов. ЗАКРЫТАЯ ПРИВАТНАЯ ТЕРРИТОРИЯ Жилой комплекс «Екатерининский парк» - это уверенность, что дома все свои. Огороженная территория позволяет почувствовать себя дома ещё до того, как жители поднимутся в свои квартиры, и не беспокоиться за детей, гуляющих во дворе. * Закрытая территория. • Круглосуточное видеонаблюдение за территорией. • Многоуровневая система контроля доступа (домофония). • Консьерж-сервис в каждом доме. 🍔 Внутри ЖК и около него есть все необходимое для жизни: сетевые магазины, аптеки, пекарни, кофейни, магазины узкой направленности (рыбные, мясные, где всегда свежие продукты), а также винотека и кафе 👍 🚚 Большим преимуществом комплекса является его расположение. Очень развита инфраструктура и меньше пробок, чем в остальных районах🚗



















